
.
Γράφει η Λένα Μαρκή
Σύμφωνα με όσα ειπώθηκαν στην συνεδρίαση του Δημοτικού Συμβουλίου στις 2/10/2025 δια στόματος Δημάρχου Γιάννη Μυλωνάκη δεν θα χρειαστεί να κοπούν δέντρα στον Υμηττό, αφού δεν υπάρχει πρόθεση να ανοιχτεί κανένας δρόμος.
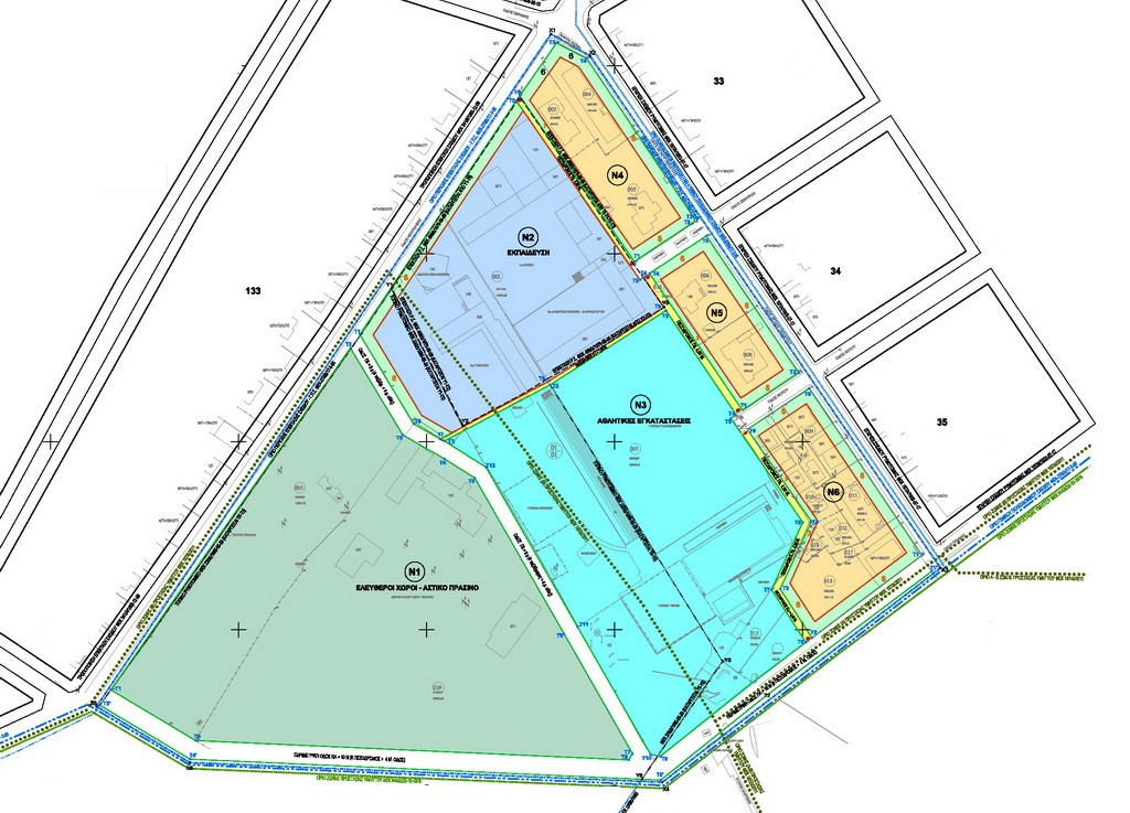
Πολύς ντόρος έγινε το τελευταίο διάστημα με την εφαρμογή της ΠΕ3 που προσπαθεί η δημοτική Αρχή. Συγκεκριμένα υπάρχει απόφαση του Δημοτικού συμβουλίου, η 293/2010, όπου προβλέπεται η διάνοιξη δρόμου από την οδό Γραβιάς στην είσοδο για το OPUS περιμετρικά της περίφραξης του υπουργείου Αγροτικής Ανάπτυξης μέσω της Καλαβρύτων έως την οδό Νεαπόλεως. Ο λόγος για τον οποίο ψηφίστηκε αυτή η πολεοδομική μελέτη για την επέκταση και την αναθεώρηση της Πολεοδομικής Ενότητας 3 (ΠΕ3) με την αναφερόμενη περιαστική οδό είναι για την ένταξη στο σχέδιο πόλης. Διότι από τον νόμο ορίζεται ότι η περιοχή του δάσους από τον αστικό ιστό πρέπει να διαχωρίζεται με κάποιον δρόμο. Ο δρόμος αυτός δεν έχει αποφασιστεί αν θα είναι πεζόδρομος ή κανονική οδός και ποιο θα είναι το πλάτος του.
Η ένταξη αυτής της ζώνης δίνει στα ιδιωτικά ακίνητα που έχουν πρόσοψη στην Αιγαίου Πελάγους (δεξιά πλευρά) ότι έχουν και τα υπόλοιπα ακίνητα, εξυγιαίνει αυτό που γίνεται μέσα στα υπάρχοντα δημοτικά ακίνητα (σχολικά συγκροτήματα και αθλητικό κέντρο Νότου), δεν αυξάνει το συντελεστή δόμησης. Ο συντελεστής δόμησης που αφορά τα υπάρχοντα κτίρια και αθλητικές εγκαταστάσεις παραμένει ο ίδιος και για το δάσος είναι μηδενικός.
Με την ολοκλήρωση της πολεοδομικής μελέτης για την ΠΕ3 θα επιτευχθεί η απόδοση ως εισφοράς σε γη όλης της έκτασης πρασίνου. Η έκταση δεν θα χτιστεί και θα παραμείνει πράσινο ως έχει και ακόμα και το πάρκο Νεαπόλεως θα περιέλθει στην κατοχή του Δήμου, χωρίς να απαιτείται παραχώρηση ή σύμφωνη γνώμη του Υπουργείου.
Όπως είπε και ο πρόεδρος του Δ.Σ. κ. Κρητικίδης «αν δούμε χωρίς δογματισμούς η ΠΕ3 είναι προς όφελος του Δήμου. Δεν χτίζεται ούτε ένα τετραγωνικό επιπλέον και παίρνουμε ως εισφορά σε γη όλο το υπουργείο Γεωργίας χωρίς τη σύμφωνη γνώμη του υπουργού».
Στην παρούσα φάση συζητιέται η ένταξη στο σχέδιο πόλης και όχι η διάνοιξη της οδού. Αφορά σε κομμάτι χωματόδρομου που είναι ήδη διανοιγμένο από το τέρμα της Γραβιάς μέχρι το OPUS, στη συνέχεια είναι δρόμος που έχει κάποια δέντρα λιγότερα από 50 και στο τελευταίο τμήμα της Καλαβρύτων είναι διαμορφωμένη οδός ως είσοδος στις εγκαταστάσεις του υπουργείου.
Στην πρόταση του κ. Τσιμπουκάκη για τοπικά ρυμοτομικά σχέδια που θα ρυθμίσουν τα θέματα των σχολικών και αθλητικών κτιρίων και για τις κατοικίες της Αιγαίου Πελάγους να γίνει πολεοδόμηση για να λυθεί το θέμα, η κ. Σιούλα απάντησε ότι το τοπικό ρυμοτομικό σημαίνει απαλλοτρίωση που σημαίνει έξοδα για τον δήμο, ενώ η ένταξη στο σχέδιο πόλης σημαίνει εισφορά σε γη και χρήμα.
Ο Δήμαρχος Γιάννης Μυλωνάκης δεσμεύτηκε ότι δεν έχει καμία πρόθεση να ανοίξει κανένα δρόμο στο δάσος. Θέλουμε, είπε, με τον πιο ανώδυνο και αποτελεσματικό τρόπο αυτές τις εκτάσεις που μπορούν να έρθουν στο Δήμο και να αξιοποιηθούν, να έρθουν. Αυτό θα γίνει με την εφαρμογή της ΠΕ3. Και δεν είναι λύση να προχωρήσει ο Δήμος σε απαλλοτρίωση όπου θα πρέπει να πληρώσει και να μην ακολουθήσει μια ανέξοδη λύση.

—
Λάβετε ενεργά μέρος στην καθημερινή ενημέρωση του https://www.aparaskevi-images.gr/, στέλνοντας φωτογραφίες, video, ή ένα μήνυμα στο info@aparaskevi-images.gr Ή μπείτε στην σελίδα μας στο Facebook ή στο X(Twitter).
Απαγορεύεται καθ’ οιονδήποτε τρόπο η χρήση ή η αναπαραγωγή των άρθρων και των φωτογραφιών της ιστοσελίδας aparaskevi-images.gr, σε οποιοδήποτε μέσο χωρίς να αναγράφεται η πηγή προέλευσης. Η χρήση και η αναπαραγωγή αυτών για εμπορικούς σκοπούς απαιτεί την έγγραφη άδεια του ιδιοκτήτη και κατόχου των αντιστοίχων δικαιωμάτων.







































