
–
Γράφει η Λένα Μαρκή
Η ανάγκη νέας κανονιστικής πράξης για την παραχώρηση χρήσης κοινόχρηστων χώρων σε τοπικές επιχειρήσεις για την ανάπτυξη τραπεζοκαθισμάτων απασχόλησε τη συνεδρίαση του δημοτικού συμβουλίου Αγίας Παρασκευής στις 21/6/2023. Οι χώροι της εισήγησης αφορούν την πλατεία Αγίας Παρασκευής, την πλατεία Κοραή, τμήμα της οδού Αγίου Ιωάννου (από Ασημακοπούλου έως την Αθ. Διάκου) και την πλατεία μεταξύ των οδών Αγ. Τριάδος, Ψαρρών και Απόλλωνος.
Η ένταση που ακολούθησε στο Δ.Σ. αφορούσε κυρίως την πλατεία στην Αγ. Τριάδος όπου θα παραχωρηθεί για πρώτη φορά χώρος. Μέλη της αντιπολίτευσης θεώρησαν σωστό ότι έπρεπε να συζητηθεί πριν το θέμα και να έρθει χωριστά στο Δ.Σ.. Αποτέλεσμα, όπως τοποθετήθηκαν αρκετοί σύμβουλοι, η συζήτηση όλων των περιπτώσεων μαζί να τους οδηγήσει να καταψηφίσουν το σύνολο του θέματος, ενώ στα περισσότερα σημεία δεν είχαν καμία αντίρρηση.

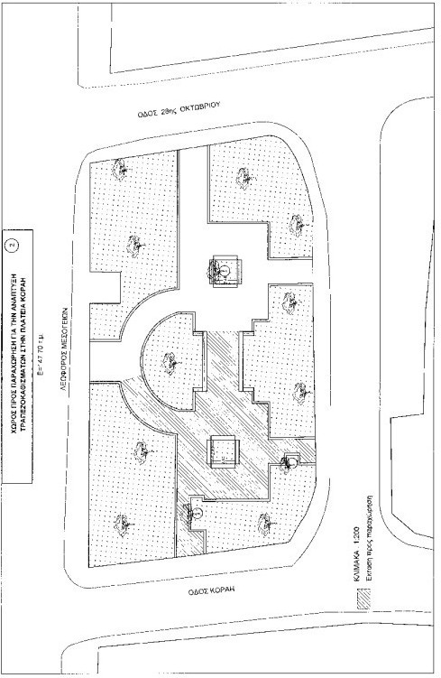
Αντίθετος με την επέκταση του καταστήματος σε μια μικρή πλατεία, δήλωσε ο κ. Γιάννης Σταθόπουλος για το θέμα της πλατείας στην Αγ. Τριάδος. Ζήτησε να συζητηθεί ξεχωριστά το θέμα γιατί διαφορετικά θα οδηγηθούν σε μη ψήφιση. Στο θέμα της πλατείας Κοραή στάθηκε υπέρ της πρότασης που έκανε ο κ. Κονταξής και έγινε αποδεκτή στην Επιτροπή Ποιότητας Ζωής. Δηλαδή στο χώρο που θα παραχωρηθεί στο κατάστημα να συμπεριλαμβάνονται και οι διάδρομοι.
Ο κ. Γιώργος Οικονόμου δήλωσε ότι δεν είναι κατά της παραχώρησης, αλλά αυτή πρέπει να γίνεται με συγκεκριμένο τρόπο. Πρώτα αναμορφώνεται μια πλατεία και μετά δίνεται χώρος για τραπεζοκαθίσματα. Εξέφρασε δε σοβαρές ενστάσεις με την προσέγγιση που γίνεται στην πλατεία Κοραή από τη δημοτική Αρχή. Κατηγόρησε την δημοτική Αρχή ότι έχει δημιουργήσει προβλήματα στην πόλη κατά της επιχειρηματικότητας. Η δική του παράταξη έχει συγκεκριμένο σχέδιο για να τονώσει την επιχειρηματικότητα.
Υπέρ της ανάπτυξης της επιχειρηματικότητας στην πόλη, δήλωσε ο κ. Γιάννης Μυλωνάκης. Έκρινε πως η έννοια του να προσπαθήσουν όλοι μαζί να κάνουν έναν μακροπρόθεσμο σχεδιασμό είναι αντίθετη με τη δημοτική Αρχή. Μίλησε για παταγώδη αποτυχία του Δημάρχου και τόνισε ότι το θέμα έρχεται προεκλογικά και χωρίς προηγούμενη συζήτηση με την αντιπολίτευση. Εκτίμησε επίσης, ότι υπάρχει σκοπιμότητα εκ μέρους της δημοτικής Αρχής, ώστε να φανεί κακή η αντιπολίτευση που δεν ψηφίζει το θέμα. Αντί ο Δήμος να σχεδιάζει και να χωροθετεί και να προσκαλεί επιχειρηματίες να αναπτύξουν δραστηριότητες, ο Δήμαρχος μαρτυράει το πως ακριβώς λειτουργεί. Στη λογική του πάμε κι όπου βγει. Κατηγόρησε τους κ. Ζορμπά και Σταθόπουλο ότι δεν έχουν κάνει τίποτα να διαμορφωθούν οι πλατείες ώστε να αναπτυχθούν τραπεζοκαθίσματα και να υπάρχει ελεύθερος χώρος. Μια δημοτική Αρχή, συμπλήρωσε, δεν μπορεί να λειτουργεί εκβιαστικά και αιφνιδιαστικά και να φέρνει μια εισήγηση 3 μέρες πριν.
Ξεκάθαρα υπέρ των επιχειρήσεων τάχθηκε ο κ. Αλέξανδρος Μουστόγιαννης. Αντίθετος στην τοποθέτηση τραπεζοκαθισμάτων στις πλατείες και υπέρ των ελεύθερων χώρων, από πολιτική άποψη, δήλωσε ο επικεφαλής του Φυσάει Κόντρα, κ. Παναγιώτης Αντωνίου.
Υπήρξαν καταγγελίες από τον πρόεδρο του Συλλόγου Κοντοπεύκου ότι στην πλατεία Αγ. Τριάδος «ξηλώθηκαν» δύο παγκάκια και τα έβαλαν σε άλλο σημείο για να δημιουργηθεί χώρος για τραπεζοκαθίσματα. Κατήγγειλε δε ότι είναι πολύ μικρός ο χώρος που αφήνεται για την είσοδο της παιδικής χαράς.
Όταν κάποιος από τους επιχειρηματίες ανέφερε ότι πιθανόν ο Δήμαρχος ψεύδεται και κάποιοι δημοτικοί σύμβουλοι διαμαρτυρήθηκαν εντόνως, ακούστηκε ο κ. Νίκος Ζόμπολας να ρωτάει έντονα εκτός μικροφώνου «δεν σε πειράζει τόση ώρα που λέμε όλοι ότι υπάρχει παρανομία, το λέει ο ίδιος ο Δήμαρχος; Ο Δήμαρχος λέει ότι υπάρχει παρανομία και δεν μιλάει κανένας! Αν είναι δυνατόν». Και ακολούθησε έντονος διάλογος με την αντιδήμαρχο Καθαριότητας κ. Ελένη Δάβαρη.
Επί της ουσίας
-Δημόσια ομολογία Δημάρχου και συγκεκριμένου καταστηματάρχη ότι γίνεται καταπάτηση του χώρου στην πλατεία Κοραή! Παρανομία ούσα εις γνώσιν του δημοτικού συμβουλίου, αλλά δεν υπήρξε καμία αντιμετώπιση όλα αυτά τα χρόνια. Μπορούμε άραγε να πούμε πως έχει άδικο ο κ. Ζόμπολας και ο κάθε Ζόμπολας που αναρωτιέται γιατί δεν μιλάει κανείς;;;
-Ειλικρινά όσο και να θέλω να είμαι θετική με τους επιχειρηματίες η χθεσινή τους παρουσία με προβλημάτισε. Τι θα πει «ζητάω 15 τ.μ. παραπάνω για να μην είμαι παράνομος όπως είμαι τόσα χρόνια» ή «θα βγάλω 7 ή 8 τραπεζοκαθίσματα τα οποία θεωρώ ότι τα δικαιούμαι κιόλας» Η κάθε πλατεία ανήκει σε όλους τους πολίτες. Φυσικά θα συμφωνήσω στην άποψη ότι προτιμάμε να ενισχύουμε τα καταστήματα στην πόλη μας και να μην τρέχουμε σε άλλες περιοχές. Εξυπακούεται ότι οι πλατείες μπορούν να έχουν και αυτή τη χρήση, όμως με τις κατάλληλες συνθήκες.
-Η μόνη διαφορά φέτος από τις αποφάσεις προηγούμενων ετών είναι ότι, με πρόταση του κ. Κονταξή στην Επιτροπή Ποιότητας Ζωής, παραχωρείται συγκεντρωμένος χώρος στην πλατεία Κοραή (σχεδόν η μισή) που περιλαμβάνει και τους διαδρόμους. Πρόταση στην οποία δεν συμφωνεί ο επιχειρηματίας γιατί θα πληρώνει περισσότερα τετραγωνικά, όπως είπε.

.
-Τόσο η πλατεία Κοραή, όσο και αυτή στην Αγίας Τριάδος είναι κυρίως διάδρομοι με λίγα παγκάκια. Χρειάζονται αναμόρφωση για να λειτουργήσουν αρμονικά οι δύο χρήσεις. Με την τωρινή μορφή τους, ότι κι αν παραχωρηθεί θα είναι σαφώς κατά των πολιτών που πηγαίνουν εκεί για τη βόλτα τους.
-Ακούστηκε πολλάκις η φράση «οι πεζοί διέρχονται από την πλατεία». Σκοπός της κάθε πλατείας δεν είναι να διευκολύνει το διάβα των πεζών, (τότε θα ήταν πεζοδρόμιο) αλλά να προσφέρει έναν χώρο ξεκούρασης, χαλάρωσης, συναναστροφής. Να μπορούν οι γονείς να πάνε τα παιδιά τους στην παιδική χαρά, αλλά και όλοι οι ενήλικες να καθίσουν σε κάποιο παγκάκι να συζητήσουν, να αστειευτούν και εν ολίγοις να «πάρουν λίγο αέρα». Αυτό όμως δεν μπορεί να γίνει όταν σε μικρή απόσταση κάποιοι άλλοι κάθονται και τρώνε. Είναι άβολο. Θα μπορούσε η επιλογή των πλατειών στις οποίες θα αναπτύσσονται τραπεζοκαθίσματα να γίνεται με σοβαρά κριτήρια και όχι απλά επειδή έγινε μια αίτηση.
-Το συμπέρασμα εν τέλει από το Δήμαρχο; Αν δεν εγκριθεί το θέμα στο δημοτικό συμβούλιο (έχει δύο ευκαιρίες) … υπάρχει και η Επιτροπή Ποιότητας Ζωής όπου έχει την πλειοψηφία και θα το περάσει βάση νόμου!!!
Παραλειπόμενα:
1. Για 5η ή 6η ίσως φορά δεν προηγήθηκαν ερωτήσεις – απαντήσεις όπως ορίζει ο κανονισμός λειτουργία του Δ.Σ. παρά τις έντονες αντιδράσεις της αντιπολίτευσης. Η αιτιολογία της προέδρου ήταν πως δεν ήθελαν να κουράσουν τους παραβρισκόμενους πολίτες που είχαν έρθει για συγκεκριμένο θέμα. Μια αιτιολογία που δεν στέκει. Αλίμονο αν κάθε φορά προσαρμόζεται η λειτουργία του Δ.Σ. για μια μικρή ομάδα ατόμων. Βέβαια διανύουμε προεκλογική περίοδο και δεν είναι εποχή για δυσαρέσκειες. Φαίνεται δε ότι κάποιοι φοβούνται είτε τις ερωτήσεις, είτε τις απαντήσεις, οπότε τις κάνουν πάσα για το τέλος της συνεδρίασης. Αποτέλεσμα διαρκώς να αναβάλλονται για την επόμενη φορά!!! Να μην σχολιάσουμε επίσης το ότι αλλάχθηκε η σειρά των θεμάτων της Η.Δ. από την πρόεδρο του συμβουλίου, δείγμα έλλειψης σεβασμού προς το θεσμό του Δ.Σ., τους συναδέλφους, αλλά και τους πολίτες που παραβρέθηκαν για να ακούσουν συγκεκριμένα θέματα. Μεταξύ ελευθερίας κινήσεων και κατάχρησης εξουσίας υπάρχει μια λεπτή γραμμή. Και χρειάζονται γνώσεις και διοικητική ικανότητα για να μην ξεπεραστεί.
2. Για άλλη μία φορά η πρόεδρος του Δ.Σ. άσκησε την προσφιλή τακτική της να διακόπτει επιλεκτικά τους δημοτικούς συμβούλους, όπως για παράδειγμα τον κ. Οικονόμου, τον κ. Παπαμιχαήλ, κλπ. Στην περίπτωση δε του κ. Οικονόμου θα μπορούσε κανείς να μιλήσει ίσως και για προσπάθεια λογοκρισίας… Σε άλλες περιπτώσεις όμως υπήρξε πλήρως ανεκτική στην κατάχρηση του χρόνου ομιλίας!
—-
Λάβετε ενεργά μέρος στην καθημερινή ενημέρωση του www.aparaskevi-images.gr , στέλνοντας φωτογραφίες, video, ή ένα μήνυμα στο info@aparaskevi-images.gr Ή μπείτε στην σελίδα μας στο Facebook ή στο Twitter.
Απαγορεύεται καθ’ οιονδήποτε τρόπο η χρήση ή η αναπαραγωγή των άρθρων και των φωτογραφιών της ιστοσελίδας aparaskevi-images.gr, σε οποιοδήποτε μέσο χωρίς να αναγράφεται η πηγή προέλευσης. Η χρήση και η αναπαραγωγή αυτών για εμπορικούς σκοπούς απαιτεί την έγγραφη άδεια του ιδιοκτήτη και κατόχου των αντιστοίχων δικαιωμάτων.









































